


- 売買物件
- 情報登録日:2026/01/31
小山 中古戸建
- 交 通
- JR横浜線「相模原」駅 徒歩15分
JR相模線「南橋本」駅 徒歩13分
- 面 積
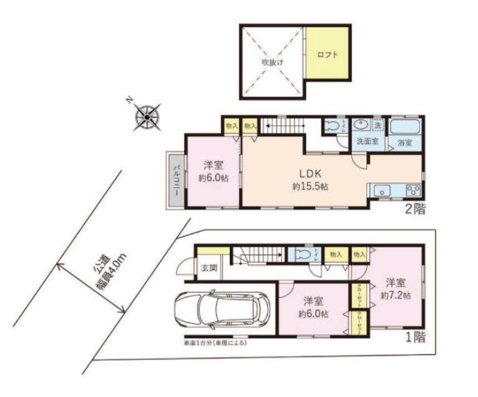
- 3LDK 土地面積 87.49m² 建物面積 98.12m²
平成25年築・リフォーム済み・駅15分の好立地・商業施設が多く利便性良好です。
小山2丁目くすのき公園まで389mです。薬や日用品を買うのに便利なウエルシア相模原ラクーン店まで、390mです。こちらの中古戸建て物件は、子育ての環境としてもうってつけです。充実した住環境をお求めなら、相模原市中央区の不動産を購入してはいかがでしょうか。当社では多種多様な不動産情報を取り扱っておりますので、まずはご連絡ください。物件の特徴
- 都市ガス
- ガスコンロ
- 三口コンロ
- システムキッチン
- シャワー付洗面化粧台
- ロフト付き
- バルコニー
- フローリング
- 全居室収納
- クローゼット
- シューズボックス
物件詳細情報
物件No.45928
| 路線 | JR横浜線「相模原」駅 徒歩15分 JR相模線「南橋本」駅 徒歩13分 |
|---|---|
| 所在地 | 神奈川県相模原市中央区小山1丁目4-9 |
| 土地面積 | 87.49m² |
| 建物面積 | 98.12m² |
| 間取 | 3LDK |
| 構造規模 | 木造2階建 |
| 築年月 | 2014/03 |
| 用途地域 | 準工業 |
| 地目 | 宅地 |
| 現況 | 空家 |
| 建ぺい率 | 60% |
| 容積率 | 200% |
| 土地権利 | 所有権 |
| 都市計画 | 市街化区域 |
| 引渡日 | 相談 |
| 接道状況 | 一方 北西7m 幅員4m |
| 小学校区 | 相模原市立小山小学校699m |
| 中学校区 | 相模原市立小山中学校649m |
| 取引態様 | 仲介 |
| 周辺環境 |
〇コンビニ:89m 〇スーパー:956m 〇ショッピングセンター:562m 〇ドラッグストア:390m 〇公園:389m 〇たけの子保育園:98m |
| 備考 | - |
- ※価格は物件の代金総額を表示しており、消費税が課税される場合は税込み価格です。(1000円未満は切り上げ) 税率は引き渡し時期により異なりますので、各物件の詳細につきましてはお問い合わせください。
- ※敷地権利が借地権のものは価格に権利金を含みます。 ※制作中に内容が変更される場合もありますので、あらかじめご了承ください。 ※購入の前には物件内容や契約条件についてご自身で十分な確認をしていただくようにお願いいたします。
- ※完成予想図はいずれも外構、植栽、外観等実際のものとは多少異なることがあります。 ※CG合成の画像の場合、実際とは多少異なる場合があります。
●経験豊富なスタッフがご提案いたします♪
不動産に関することは何でもお気軽にご相談ください。
お客様にとって一番良いご選択ができるよう様々な視点でご提案させて頂きます。
●営業時間 午前9時30分~午後6時30分(定休日:第1、第3火曜日・毎週水曜日)
営業時間内はお電話でのお問い合わせがスムーズにご案内できます。
お気軽にお電話ください。
周辺地図

- 月々の支払い額を計算する
住宅ローンシミュレーション
- 物件価格
- 3,190
- 万円の場合
自己資金
- 0
- 万円
-
ボーナス返済
- 0
- 万円
-
金利
- 0.875
- %
-
返済期間
- 35
- 年
-
毎月の支払い額
- ------
- 円
※ 初期値で選択されている金利は、一般的な金融機関の変動金利を元にした目安値です。






































