


- 売買物件
- 情報登録日:2025/10/25
ディアフォレスト橋本台
- 交 通
- JR相模線「南橋本」駅 徒歩13分
JR横浜線「橋本」駅 徒歩22分
- 面 積
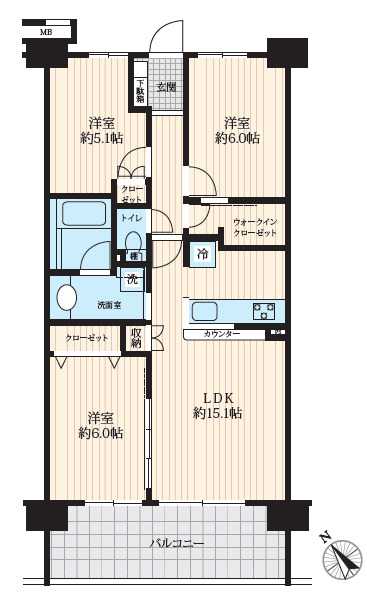
- 3LDK 専有面積 70.41m² バルコニー面積 12.3m²
70.41平米程の専有面積でスペースも十分。開放感溢れる室内が魅力の3LDKの物件はこちらです。
アートハウジングはお客様が満足して頂けるよう、全力でサポート致します。こだわりやご要望などあれば、ご連絡をお待ちしております。物件の特徴
- 都市ガス
- システムキッチン
- 追焚機能
- W.INクローゼット
- オートロック
- エレベータ
- バルコニー
- フローリング
- 宅配ボックス
- 駐輪場
- 温水洗浄便座
- 浴室乾燥機
- 食器洗い乾燥機
- 防犯カメラ
- 全居室収納
- クローゼット
- シューズボックス
- ペット相談
物件詳細情報
物件No.46315
| 路線 | JR相模線「南橋本」駅 徒歩13分 JR横浜線「橋本」駅 徒歩22分 |
|---|---|
| 所在地 | 神奈川県相模原市緑区橋本台1丁目28-15 |
| 専有面積 | 70.41m² |
| バルコニー面積 | 12.3m² |
| 間取 | 3LDK |
| 総戸数 | 62戸 |
| 構造規模 | RC9階建 5階部分 |
| 築年月 | 2009/03 |
| 用途地域 | 工業 |
| 現況 | 空家 |
| 土地権利 | 所有権 |
| 引渡日 | 相談 |
| 管理費 | 13,600円 |
| 修繕積立金 | 16,850円 |
| 管理形態 | 全部委託 |
| 駐車場 | 空有 5,000円/月 |
| 小学校区 | 相模原市立橋本小学校912m |
| 中学校区 | 相模原市立旭中学校980m |
| 取引態様 | 仲介 |
| 周辺環境 |
〇コンビニ:101m 〇スーパー:596m 〇ドラッグストア:769m 〇橋本中央保育園:366m |
| 備考 | 〇駐車場 500~5000円/月(※空要確認) |
- ※価格は物件の代金総額を表示しており、消費税が課税される場合は税込み価格です。(1000円未満は切り上げ) 税率は引き渡し時期により異なりますので、各物件の詳細につきましてはお問い合わせください。
- ※敷地権利が借地権のものは価格に権利金を含みます。 ※制作中に内容が変更される場合もありますので、あらかじめご了承ください。 ※購入の前には物件内容や契約条件についてご自身で十分な確認をしていただくようにお願いいたします。
- ※完成予想図はいずれも外構、植栽、外観等実際のものとは多少異なることがあります。 ※CG合成の画像の場合、実際とは多少異なる場合があります。
●経験豊富なスタッフがご提案いたします♪
不動産に関することは何でもお気軽にご相談ください。
お客様にとって一番良いご選択ができるよう様々な視点でご提案させて頂きます。
●営業時間 午前9時30分~午後6時30分(定休日:第1、第3火曜日・毎週水曜日)
営業時間内はお電話でのお問い合わせがスムーズにご案内できます。
お気軽にお電話ください。
周辺地図

- 月々の支払い額を計算する
住宅ローンシミュレーション
- 物件価格
- 3,298
- 万円の場合
自己資金
- 0
- 万円
-
ボーナス返済
- 0
- 万円
-
金利
- 0.875
- %
-
返済期間
- 35
- 年
-
毎月の支払い額
- ------
- 円
※ 初期値で選択されている金利は、一般的な金融機関の変動金利を元にした目安値です。

















