


- 売買物件
- 情報登録日:2026/03/19
相模原市南区相模台7丁目新築 3号棟
☆ZEH水準住宅・駐車並列2台可・前面道路6m・都市ガス・収納豊富・充実の設備、仕様☆
■横に並べて停められる並列駐車でいつでも自由に車を出し入れできます!■配膳・片付けがしやすいカウンターキッチン♪
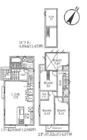
■ロフトは収納はもちろん、趣味空間としてもお使い頂けます☆
*内見どうぞお気軽にお問い合わせください*
物件の特徴
- 都市ガス
- ガスコンロ
- 三口コンロ
- システムキッチン
- 追焚機能
- シャワー付洗面化粧台
- 床下収納
- W.INクローゼット
- ロフト付き
- バルコニー
- フローリング
- TVモニター付きインターホン
- 温水洗浄便座
- 対面式キッチン
- 浴室乾燥機
- 食器洗い乾燥機
- 全居室収納
- クローゼット
- シューズボックス
- オートバス
物件詳細情報
物件No.46361
| 路線 | 小田急小田原線「小田急相模原」駅 徒歩26分 |
|---|---|
| 所在地 | 神奈川県相模原市南区相模台7丁目8-8 |
| 土地面積 | 100m² |
| 建物面積 | 90.45m² |
| 間取 | 4LDK |
| 総戸数 | - |
| 販売戸数 | - |
| 構造規模 | 木造2階建 |
| 完成 | 2025/03 |
| 建築確認番号 | 第KBI-SGM24-10-4426号 |
| 用途地域 | 第一種中高層住居専用 |
| 地目 | 宅地 |
| 現況 | 空家 |
| 建ぺい率 | 60% |
| 容積率 | 200% |
| 土地権利 | 所有権 |
| 都市計画 | 市街化区域 |
| 引渡日 | 相談 |
| 接道状況 | - |
| 小学校区 | 相模原市立桜台小学校513m |
| 中学校区 | 相模原市立相模台中学校350m |
| 取引態様 | 仲介 |
| 周辺環境 |
〇コンビニ:504m 〇スーパー:338m 〇ドラッグストア:698m 〇相模原市立麻溝台保育園:877m |
| 備考 | - |
- ※価格は物件の代金総額を表示しており、消費税が課税される場合は税込み価格です。(1000円未満は切り上げ) 税率は引き渡し時期により異なりますので、各物件の詳細につきましてはお問い合わせください。
- ※敷地権利が借地権のものは価格に権利金を含みます。 ※制作中に内容が変更される場合もありますので、あらかじめご了承ください。 ※購入の前には物件内容や契約条件についてご自身で十分な確認をしていただくようにお願いいたします。
- ※完成予想図はいずれも外構、植栽、外観等実際のものとは多少異なることがあります。 ※CG合成の画像の場合、実際とは多少異なる場合があります。
●経験豊富なスタッフがご提案いたします♪
不動産に関することは何でもお気軽にご相談ください。
お客様にとって一番良いご選択ができるよう様々な視点でご提案させて頂きます。
●営業時間 午前9時30分~午後6時30分(定休日:第1、第3火曜日・毎週水曜日)
営業時間内はお電話でのお問い合わせがスムーズにご案内できます。
お気軽にお電話ください。
周辺地図

- 月々の支払い額を計算する
住宅ローンシミュレーション
- 物件価格
- 3,585
- 万円の場合
自己資金
- 0
- 万円
-
ボーナス返済
- 0
- 万円
-
金利
- 0.875
- %
-
返済期間
- 35
- 年
-
毎月の支払い額
- ------
- 円
※ 初期値で選択されている金利は、一般的な金融機関の変動金利を元にした目安値です。







































