


- 売買物件
- 情報登録日:2026/04/06
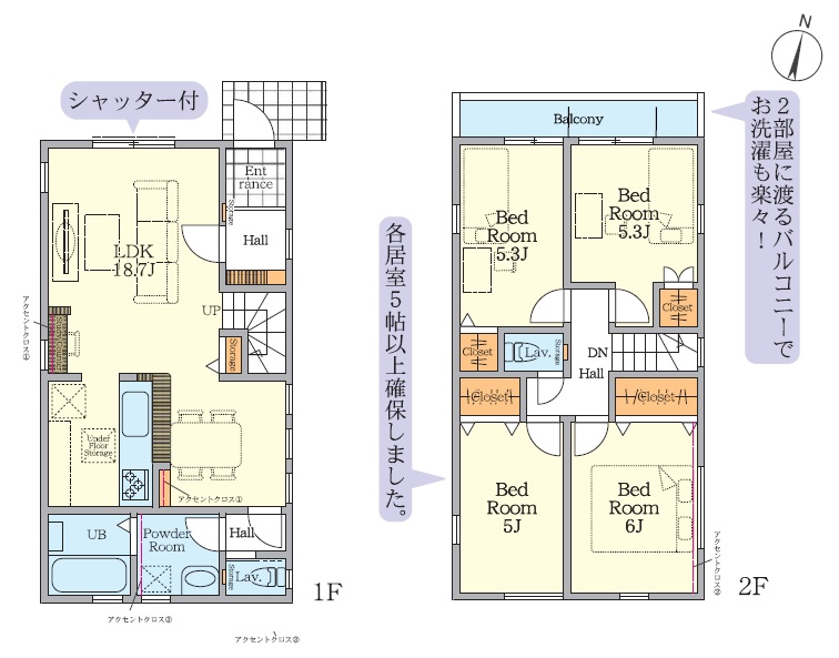
八王子市鹿島 新築一戸建て 2号棟
- 交 通
- 多摩都市モノレール「松が谷」駅 徒歩10分
小田急多摩線「小田急多摩センター」駅 徒歩19分
- 面 積
- 4LDK 土地面積 116.88m² 建物面積 93.38m²
通学区域内の小学校は八王子市立鹿島小学校で徒歩5分です。システムキッチンは必要な物が組み込まれているため、すぐ調理できます。様々な広さの全居室収納は物を綺麗に整理できるのでお薦めです。
鹿島公園まで232mです。浴室乾燥機付き物件ならば、日中でなくても洗濯物を干せるので日中は忙しいという人にもおすすめです。日常生活で利用頻度の高い水回りだからこそ、使い勝手のいいシステムキッチンを選んでみませんか。新生活のサポートを致します。不動産情報を求めるのであれば、アートハウジングのスタッフまでお気軽にお声かけください。物件の特徴
- 都市ガス
- システムキッチン
- 追焚機能
- シャワー付洗面化粧台
- バルコニー
- フローリング
- TVモニター付きインターホン
- 温水洗浄便座
- 浴室乾燥機
- 食器洗い乾燥機
- 全居室収納
- クローゼット
- シューズボックス
- オートバス
物件詳細情報
物件No.46930
| 路線 | 多摩都市モノレール「松が谷」駅 徒歩10分 小田急多摩線「小田急多摩センター」駅 徒歩19分 |
|---|---|
| 所在地 | 東京都八王子市鹿島945-66付近 |
| 土地面積 | 116.88m² |
| 建物面積 | 93.38m² |
| 間取 | 4LDK |
| 総戸数 | - |
| 販売戸数 | - |
| 構造規模 | 木造2階建 |
| 完成 | 2026/04 |
| 建築確認番号 | 第25UDI1W建09398号 |
| 用途地域 | 第一種低層住居専用 |
| 地目 | 宅地 |
| 現況 | 未完成 |
| 建ぺい率 | 40% |
| 容積率 | 80% |
| 土地権利 | 所有権 |
| 都市計画 | 市街化区域 |
| 引渡日 | 相談 |
| 接道状況 | 一方 |
| 小学校区 | 八王子市立鹿島小学校352m |
| 中学校区 | 八王子市立松が谷中学校1432m |
| 取引態様 | 仲介 |
| 周辺環境 |
〇コンビニ:959m 〇公園:232m 〇多摩和田郵便局:753m |
| 備考 | - |
- ※価格は物件の代金総額を表示しており、消費税が課税される場合は税込み価格です。(1000円未満は切り上げ) 税率は引き渡し時期により異なりますので、各物件の詳細につきましてはお問い合わせください。
- ※敷地権利が借地権のものは価格に権利金を含みます。 ※制作中に内容が変更される場合もありますので、あらかじめご了承ください。 ※購入の前には物件内容や契約条件についてご自身で十分な確認をしていただくようにお願いいたします。
- ※完成予想図はいずれも外構、植栽、外観等実際のものとは多少異なることがあります。 ※CG合成の画像の場合、実際とは多少異なる場合があります。
●経験豊富なスタッフがご提案いたします♪
不動産に関することは何でもお気軽にご相談ください。
お客様にとって一番良いご選択ができるよう様々な視点でご提案させて頂きます。
●営業時間 午前9時30分~午後6時30分(定休日:第1、第3火曜日・毎週水曜日)
営業時間内はお電話でのお問い合わせがスムーズにご案内できます。
お気軽にお電話ください。
周辺地図

- 月々の支払い額を計算する
住宅ローンシミュレーション
- 物件価格
- 5,399
- 万円の場合
自己資金
- 0
- 万円
-
ボーナス返済
- 0
- 万円
-
金利
- 0.875
- %
-
返済期間
- 35
- 年
-
毎月の支払い額
- ------
- 円
※ 初期値で選択されている金利は、一般的な金融機関の変動金利を元にした目安値です。






















