


- 売買物件
- 情報登録日:2026/03/21
北里 中古戸建
- 交 通
- JR横浜線「古淵」駅 バス23分 バス停「北里大学病院・北里大学」下車 徒歩12分
小田急小田原線「相模大野」駅 バス30分 バス停「麻溝車庫」下車 徒歩8分
- 面 積
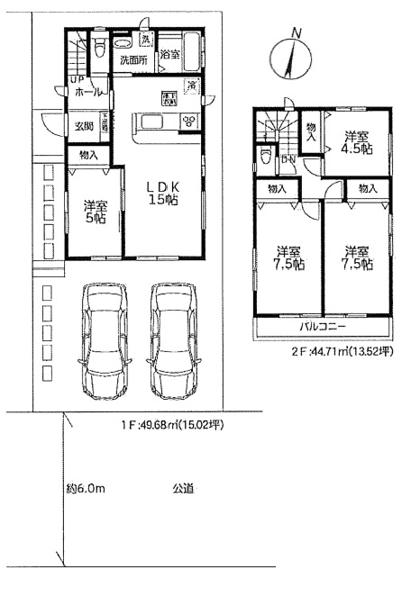
- 4LDK 土地面積 117.04m² 建物面積 94.39m²
前面道路6m以上という駐車もラクラクな物件となっております。ご家族にも十分な広さの4LDK物件です。マイホームの購入をお考えなら、ぜひ当社までご連絡ください。お待ちしております。
家族の時間を大切にできる、ゆとりある住まいです。中古住宅ならではの落ち着いた雰囲気があり、実際の生活をイメージしやすいのも魅力。周辺環境も含め、ぜひ現地でご確認ください。物件の特徴
- 都市ガス
- ガスコンロ
- 三口コンロ
- システムキッチン
- バルコニー
- フローリング
- TVモニター付きインターホン
- 対面式キッチン
- 全居室収納
- クローゼット
- シューズボックス
物件詳細情報
物件No.47285
| 路線 | JR横浜線「古淵」駅 バス23分 バス停「北里大学病院・北里大学」下車 徒歩12分 小田急小田原線「相模大野」駅 バス30分 バス停「麻溝車庫」下車 徒歩8分 |
|---|---|
| 所在地 | 神奈川県相模原市南区北里1丁目7-3-1 |
| 土地面積 | 117.04m² |
| 建物面積 | 94.39m² |
| 間取 | 4LDK |
| 構造規模 | 木造2階建 |
| 築年月 | 2019/05 |
| 用途地域 | 第一種住居 |
| 地目 | 宅地 |
| 現況 | 空家 |
| 建ぺい率 | 60% |
| 容積率 | 200% |
| 土地権利 | 所有権 |
| 都市計画 | 市街化区域 |
| 引渡日 | 即時 |
| 接道状況 | 一方 南 幅員6m |
| 小学校区 | 相模原市立麻溝小学校2794m |
| 中学校区 | 相模原市立相陽中学校3751m |
| 取引態様 | 仲介 |
| 周辺環境 |
〇コンビニ:1203m 〇スーパー:1575m 〇総合病院:926m 〇ショッピングセンター:2067m 〇ドラッグストア:1322m 〇和泉保育園:1646m |
| 備考 | 〇学区指定変更許可区域…麻溝小学校から大沼小学校、相陽中学校から緑が丘中学校・麻溝台中学校・大野南中学校へ変更可能(詳しくは市役所・学務課へお問い合わせください) |
- ※価格は物件の代金総額を表示しており、消費税が課税される場合は税込み価格です。(1000円未満は切り上げ) 税率は引き渡し時期により異なりますので、各物件の詳細につきましてはお問い合わせください。
- ※敷地権利が借地権のものは価格に権利金を含みます。 ※制作中に内容が変更される場合もありますので、あらかじめご了承ください。 ※購入の前には物件内容や契約条件についてご自身で十分な確認をしていただくようにお願いいたします。
- ※完成予想図はいずれも外構、植栽、外観等実際のものとは多少異なることがあります。 ※CG合成の画像の場合、実際とは多少異なる場合があります。
リフォーム・リノベーション
| 内装 | 2025年11月実施 壁、天井(クロス、塗装等)、ハウスクリーニング等 |
|---|
●経験豊富なスタッフがご提案いたします♪
不動産に関することは何でもお気軽にご相談ください。
お客様にとって一番良いご選択ができるよう様々な視点でご提案させて頂きます。
●営業時間 午前9時30分~午後6時30分(定休日:第1、第3火曜日・毎週水曜日)
営業時間内はお電話でのお問い合わせがスムーズにご案内できます。
お気軽にお電話ください。
周辺地図

- 月々の支払い額を計算する
住宅ローンシミュレーション
- 物件価格
- 3,380
- 万円の場合
自己資金
- 0
- 万円
-
ボーナス返済
- 0
- 万円
-
金利
- 0.875
- %
-
返済期間
- 35
- 年
-
毎月の支払い額
- ------
- 円
※ 初期値で選択されている金利は、一般的な金融機関の変動金利を元にした目安値です。







































