


- 売買物件
- 情報登録日:2026/03/13
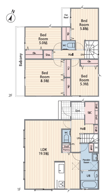
新築戸建 厚木市林3丁目 3号棟
- 交 通
- 小田急小田原線「本厚木」駅 バス12分 バス停「穴口橋」下車 徒歩2分
- 面 積
- 4LDK 土地面積 110.01m² 建物面積 109.3m²
設備も充実している新築戸建ての物件はいかがでしょうか。ゆったりとしたくつろぎの空間のある、4LDKの物件です。小田急小田原線本厚木周辺にある物件探しは、厚木市の物件情報が満載のアートハウジングにご依頼
生活動線や使い勝手にも配慮された、暮らしやすさを感じられる物件です。周辺環境も含め、現地でご確認いただくことで魅力を実感していただけます。ご質問等ございましたらお気軽にどうぞ。物件の特徴
- 都市ガス
- システムキッチン
- 追焚機能
- W.INクローゼット
- バルコニー
- フローリング
- 宅配ボックス
- TVモニター付きインターホン
- 温水洗浄便座
- 対面式キッチン
- 浴室乾燥機
- 食器洗い乾燥機
- 全居室収納
- クローゼット
- シューズボックス
- シューズインクローゼット
- オートバス
物件詳細情報
物件No.47979
| 路線 | 小田急小田原線「本厚木」駅 バス12分 バス停「穴口橋」下車 徒歩2分 |
|---|---|
| 所在地 | 神奈川県厚木市林3丁目16-14 |
| 土地面積 | 110.01m² |
| 建物面積 | 109.3m² |
| 間取 | 4LDK |
| 総戸数 | - |
| 販売戸数 | - |
| 構造規模 | 木造2階建 |
| 完成 | 2025/12 |
| 建築確認番号 | - |
| 用途地域 | 第一種低層住居専用 |
| 地目 | 宅地 |
| 現況 | 空家 |
| 建ぺい率 | 50% |
| 容積率 | 100% |
| 土地権利 | 所有権 |
| 都市計画 | 市街化区域 |
| 引渡日 | 相談 |
| 接道状況 | - |
| 小学校区 | 厚木市立緑ケ丘小学校759m |
| 中学校区 | 厚木市立林中学校719m |
| 取引態様 | 仲介 |
| 周辺環境 |
〇コンビニ:402m 〇ドラッグストア:168m 〇天然温泉 湯花楽 厚木店:530m |
| 備考 | - |
- ※価格は物件の代金総額を表示しており、消費税が課税される場合は税込み価格です。(1000円未満は切り上げ) 税率は引き渡し時期により異なりますので、各物件の詳細につきましてはお問い合わせください。
- ※敷地権利が借地権のものは価格に権利金を含みます。 ※制作中に内容が変更される場合もありますので、あらかじめご了承ください。 ※購入の前には物件内容や契約条件についてご自身で十分な確認をしていただくようにお願いいたします。
- ※完成予想図はいずれも外構、植栽、外観等実際のものとは多少異なることがあります。 ※CG合成の画像の場合、実際とは多少異なる場合があります。
●経験豊富なスタッフがご提案いたします♪
不動産に関することは何でもお気軽にご相談ください。
お客様にとって一番良いご選択ができるよう様々な視点でご提案させて頂きます。
●営業時間 午前9時30分~午後6時30分(定休日:第1、第3火曜日・毎週水曜日)
営業時間内はお電話でのお問い合わせがスムーズにご案内できます。
お気軽にお電話ください。
周辺地図

- 月々の支払い額を計算する
住宅ローンシミュレーション
- 物件価格
- 3,890
- 万円の場合
自己資金
- 0
- 万円
-
ボーナス返済
- 0
- 万円
-
金利
- 0.875
- %
-
返済期間
- 35
- 年
-
毎月の支払い額
- ------
- 円
※ 初期値で選択されている金利は、一般的な金融機関の変動金利を元にした目安値です。

































